Mẫu nhà 11x20m chị Minh
Mẫu thiết kế nhà đẹp 11x20m mái lệch theo phong cách châu Âu trong đó gia chủ yêu cầu thiết kế nhà 2 tầng đẹp thoáng mát hiện đại mang hơi thở mới lạ và tạo ra sự khác biệt lớn so với những mẫu nhà phố đẹp hiện đại 1 trệt 1 lầu xung quanh. Với 5 thành viên trong gia đình 3 thế hệ và thêm một người cháu giúp việc. Chị Minh mong muốn thiết kế nhà đẹp 2 tầng theo phong thủy nhà đẹp theo tuổi 1985 Ất Sửu của chị và trong đó bố trí cho phòng ngủ ba mẹ chị ở tầng trệt có phòng vệ sinh tắm giặt riêng tư lịch sự. Nào mời quý vị và các bạn cùng khám phá và chiêm ngưỡng mẫu thiết kế nhà phố 11x20m này dưới đây
Thông tin thiết kế nhà đẹp 11x20m 2 tầng hiện đại
– Chủ đầu tư: Đặng Châu Thu Minh sinh 1985
– Địa chỉ: TP Thủ Dầu Một – Bình Dương
– Diện tích : 11x20m = 220m2 ngoại ô ven thành phố
– Diện tích thiết kế thi công xây dựng: 11x12m = 132m2
– Đơn vị thiết kế thi công xây dựng: Công ty BTNPD
– Thời gian thi công xây dựng: 7 tháng trọn gói

Mẫu thiết kế nhà đẹp 11x20m chị Minh – TDM – Bình Dương
Yêu cầu thiết kế nhà đẹp 11x20m 2 tầng phong cách hiện đại châu âu
Gia đình tôi có khu đất ngang 11m dài sâu 20m 1 mặt tiền đường lộ rộng 6m mong muốn thiết kế nhà vườn đẹp 2 tầng có thác nước và hồ sen cùng lối đi xung quanh. Hiện vợ chồng tôi chưa có xe ô tô nhưng phương án thiết kế nhà phố 2 tầng đẹp cho tôi yêu cầu kiến trúc sư có phương án dự phòng. Riêng về công năng sử dụng và sinh hoạt tôi cần thiết kế 1 phòng khách đẹp, 4 nội thất phòng ngủ cho ba mẹ tôi, vợ chồng và 1 con trai, 1 phòng ngủ cho cháu gái giúp việc.
Ngoài ra cần thiết kế 3 phòng vệ sinh chia ra, 1 phòng thờ, nội thất bếp ăn đẹp liền kề, tư vấn các hướng cửa chính, hướng nhà, các phòng chức năng đúng phong thủy tuổi của tôi 1985. Tư vấn các phương án thiết kế nội thất đẹp cho các phòng chức năng theo kiến trúc nhà phố 2 tầng đẹp hiện đại thoáng mát và khác biệt.
Giải pháp thiết kế nhà đẹp 11x20m 2 tầng thoáng đẹp
Chị Minh sau khi gọi điện nhờ tư vấn thiết kế nhà phố 11x20m hợp với phong thủy nhà đẹp và diện tích khu đất cũng như đã trực tiếp đến công ty thiết kế thi công xây dựng nhà phố chúng tôi tham khảo thêm các mẫu bản vẽ thiết kế nhà phố 2 tầng và các tư vấn cụ thể khác liên quan. Công ty xây dựng BTNPD chúng tôi đã cử 1 kiến trúc sư và 1 chuyên gia phong thủy nhà cùng gia đình đến tận Thủ Dầu Một tiến hành đo đạc, khảo sát và bàn bạc thống nhất các phương án thiết kế nhà phố hiện đại 2 tầng theo khu đất 11x20m hướng Tây Nam – Diên Niên vừa hợp với khu đất hiện tại vừa hợp với mệnh Càn (Kim) – Tây tứ mệnh ứng với tuổi của chị Minh. Riêng về hướng chính của cửa và bàn thờ đều theo cung Phước Đức, hợp với quẻ thiên địa bỉ trong kinh chu dịch nhà khá giả, ổn định và hợp với kinh doanh của chị.
Bản vẽ thiết kế nhà đẹp 11x20m tổng diện tích 220m2
Ở phương án thiết kế nhà ở 2 tầng diện tích 220m2 này chúng tôi sau khi bàn bạc dựa trên tài chính và phong thủy chúng tôi đưa ra 2 giải pháp trong đó giải pháp thứ nhất cho mẫu nhà đẹp 2 tầng này một là thiết kế theo sở thích của chị Minh theo kiến trúc nhà vườn đẹp có hồ sen và thác nước bên phải, lối đi quanh vườn cũng như khoảng sân trước sau rộng thoáng gần gũi với thiên nhiên. Mẫu nhà vườn đẹp diện tích 11x20m này được thiết kế thi công trên diện tích 11x12m phần diện tích còn lại là để bố trí các khu tiểu cảnh thiết kế sân vườn đẹp thoáng mát. Bản vẽ thiết kế nhà 2 tầng như sau


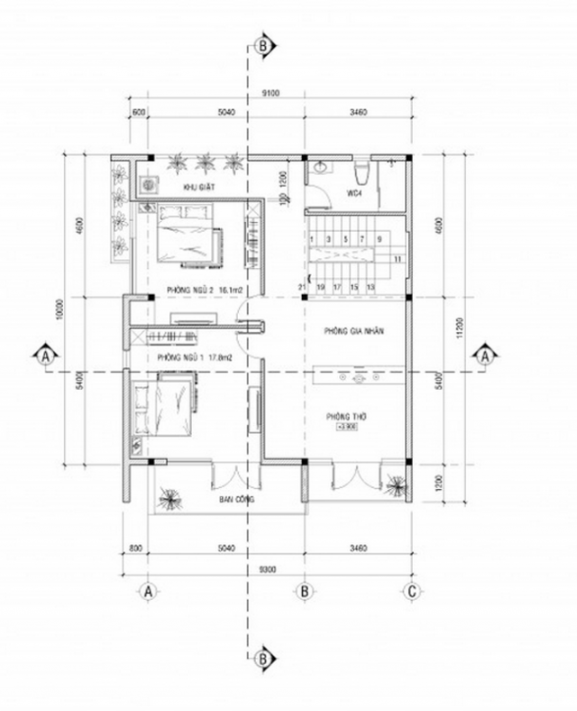
Bản vẽ thiết kế nhà đẹp 2 tầng diện tích 11x20m = 220m2 cho mặt bằng tầng trệt và lầu 1 chị Minh Bình Dương
Thiết kế nhà đẹp 11x20m 2 tầng cho công năng sử dụng
Ở phương án thiết kế nhà phố 11x20m này chúng ta sẽ thi công trên 2 mặt bằng với diện tích mỗi mặt bằng là 11x12m diện tích mỗi mặt bằng là 132m2 trong đó bao gồm các phòng nội thất nhà đẹp như sau
– Mặt bằng nhà phố 11x20m trệt gồm khoảng sân trước rộng 6m ngang 11m giành cho khoảng sân rộng thoáng, bên trái là cửa chính đối diện với nội thất phòng ngủ ông bà. Ở diện tích này chúng tôi dự phòng 1 hầm gara về sau theo yêu cầu ở dưới phòng ngủ có lối lên tầng trệt, cửa cuốn, xe đi thẳng từ cửa chính thẳng xuống gara hầm, phía sau chúng tôi bố trí chừa diện tích khoảng 2m tạo lối đi xung quanh nhà vườn đẹp 220m2 này, bố trí sàn nước, cây xanh tạo bóng mát cho sân sau.




Tư vấn các phong cách thiết kế nội thất nhà đẹp 11x20m 2 tầng hiện đại ấn tượng theo thời gian
Riêng nội thất nhà phố 1 trệt 1 lầu này sẽ bao gồm 1 phòng khách rộng 22m2, thiết kế phòng ngủ cho ba mẹ chị Minh có phòng tắm giặt vệ sinh chung riêng tư lịch sự. Thiết kế nội thất bếp ăn đẹp phía sau phòng khách bao gồm bàn ăn tròn cho 6 người, nội thất phòng bếp đẹp, 1 phòng vệ sinh chung cuối bên góc trái kế cầu thang lối lên lầu.
Thiết kế sân vườn xung quanh với hồ sen ngang 2,5m dài 5,5m, thác nước có đài phun ngang 2,5m dài 4,5m bên trái và bố trí cây xanh tạo bóng râm giúp mẫu nhà vườn đẹp 220m2 này được mát mẻ. Phía sân trước có tiền sảnh và tầng cấp lên phòng khách đẹp hướng mặt tiền.
– Thiết kế nhà phố 11x20m cho mặt bằng tầng 2 tức lầu 1 với diện tích 132m2 bao gồm 2 phòng ngủ trong đó có 1 phòng ngủ của chủ nhân diện tích rộng 17m2 với trang trí nội thất đẹp như tủ đứng, ti vi, bàn làm đẹp, đèn trang trí.. Tiếp theo là phòng ngủ cho con trai và thiết kế thêm 1 phòng ngủ cho gia nhân tức cô gái giúp việc. Ngoài ra còn thiết kế 1 phòng thờ ở phía trước view ra hướng mặt tiền đường lộ theo hướng Tây Nam cung Phước đức hợp với phong thủy nhà ở 11x20m đẹp, phía cuối bố trí 1 phòng vệ sinh ở cạnh cầu thang và đối diện là phòng giặt, ủi đồ tiện ích hiện đại.
Thiết kế nhà đẹp 2 tầng diện tích 11x2om cho phương án 2

Tư vấn thiết kế nhà đẹp 2 tầng theo phong cách biệt thự mini 11x20m hiện đại
Phương án 2 cho mẫu thiết kế nhà phố 11x20m 2 tầng đẹp này cũng được đề xuất khi đưa ra thảo luận của nhóm kiến trúc sư chúng tôi. Ở mẫu nhà phố đẹp 2 tầng 220m2 này thiết kế có gara ngay bên trái thay cho hồ sen và thác nước khu tiểu cảnh. Mẫu thiết kế nhà ở 1 trệt 1 lầu này bên trái là cổng chính lối vào thẳng gara diện tích ngang 3m, còn lại là 8m giành cho phòng khách đẹp giữa và phòng ngủ bên phải. Mẫu thiết kế nhà phố 1 trệt 1 lầu này cũng được thiết kế theo mẫu nhà phố hiện đại 2 tầng phong cách châu âu mái lệch độc đáo. Công năng sử dụng có thể bố trí thêm 1 đến 2 phòng. Sân trước và sau như phương án 1. Vì đây là mẫu thiết kế nhà đẹp ứng với mẫu thiết kế biệt thự mini 2 tầng nên kinh phí thi công cho kiến trúc biệt thự sẽ cao hơn so với mẫu nhà phố đẹp hiện đại của chị Minh. Tùy theo tài chính mà quý vị có sự lựa chọn phù hợp nhé.
Kết luận kiến trúc thiết kế nhà đẹp 11x20m 2 tầng 1 trệt 1 lầu đẹp
Thiết kế nhà đẹp theo phong cách châu âu theo xu hướng hiện đại được nhiều gia đình trẻ như chị Minh ưa chuộng. Khi thiết kế nhà ở hiện đại 2 tầng theo lối nhà vườn đẹp 11x20m bên cạnh yếu tố không gian sinh hoạt hoàn mỹ còn lưu ý đến phong thủy nhà đẹp và liến trúc mới lạ độc đáo. Mẫu thiết kế nhà đẹp 11x20m mái lệch trên cơ bản là kiến trúc nhà phố hiện đại mái lệch, màu sắc của ngôi nhà với gam màu tone trắng chủ đạo kết hợp với các mảng xanh từ thiên nhiên rất hợp với mệnh Càn Kim của tuổi 1985 Ất Sửu chị Minh.
Đây là mẫu nhà phố 2 tầng 11x20m đẹp được kiến trúc sư công ty xây dựng chúng tôi thiết kế thiên về nghĩ dưỡng với bố trí các hệ kính cường lực chịu nhiệt cho các hệ cửa kính và ban công rộng 2m trước đẹp. Bố trí các hệ lam trắng sọc ngang cùng các mảng khối vuông đẹp kết hợp hài hòa giữa kính trong xanh và đá hoa cương ốp lát, sàn gỗ nội thất hiện đại. Các bồn hoa chậu kiểng xanh cũng được bài trí xung quanh tạo sự gần gũi với thiên nhiên giữa trong và ngoài nhà phố 2 tầng đẹp này.
Điểm nhấn nữa đó là thiết kế nội thất, bằng việc kết hợp các vật dụng như bàn ghế sofe màu lam đậm, các chăn ga gối đệm Hàn Quốc cho nội thất phòng ngủ đẹp phối kết các gam màu cùng đèn trang trí , tranh ảnh.. toát lên được không gian nhà đẹp vừa hiện đại vừa lung linh lãng mạn lý tưởng cho các thành viên thư giãn, nghĩ ngơi.
Với những gì chúng tôi đã trình bàytrong bài viết thiết kế nhà đẹp 11x20m 2 tầng hiện đại ấn tượng đặc sắc và tư vấn thiết kế nhà phố 11x20m trên phần nào đã giúp quý vị cảm nhận được nét đẹp trong phần thiết kế kiến trúc qua phối cảnh và bản vẽ thiết kế nhà 2 tầng 220m2. Đây là mẫu thiết kế nhà 2 tầng đơn giản nhưng rất hiện đại và phổ biến được nhiều gia đình lựa chọn thi công xây dựng trong bối cảnh kinh tế còn eo hẹp. Ý tưởng thiết kế sáng tạo cho thiết kế nhà 2 tầng diện tích 11x20m đó là mái lệch, kết hợp với các mảng khối theo kiểu nhà hộp kiến trúc bền vững, lấy nội thất nhà đẹp và bố trí kiến trúc với các khu tiểu cảnh sân vườn làm điểm nhấn cho kiến trúc nhà phố 2 tầng này. Một không gian nghĩ ngơi sau những ngày làm việc mệt mỏi áp lực, một tổ ấm tiện nghi giúp gia đình gần gũi thư giãn quây quần bên nhau là yếu tố cần và đủ để bạn có thể lựa chọn.
Thông tin liên hệ:
- KTS. TrầnThị Bích Huyền
- Đt: 0838214112 - 0908 770 961
- Email: huyen.cqx@gmail.com
- Website: www.nhadepvuonxinh.com.vn
- Đc: 118 Nguyễn Đình Chiểu, P. Đakao, Q.1, TP. HCM
Nguồn :bietthunhaphodep.com



































































































